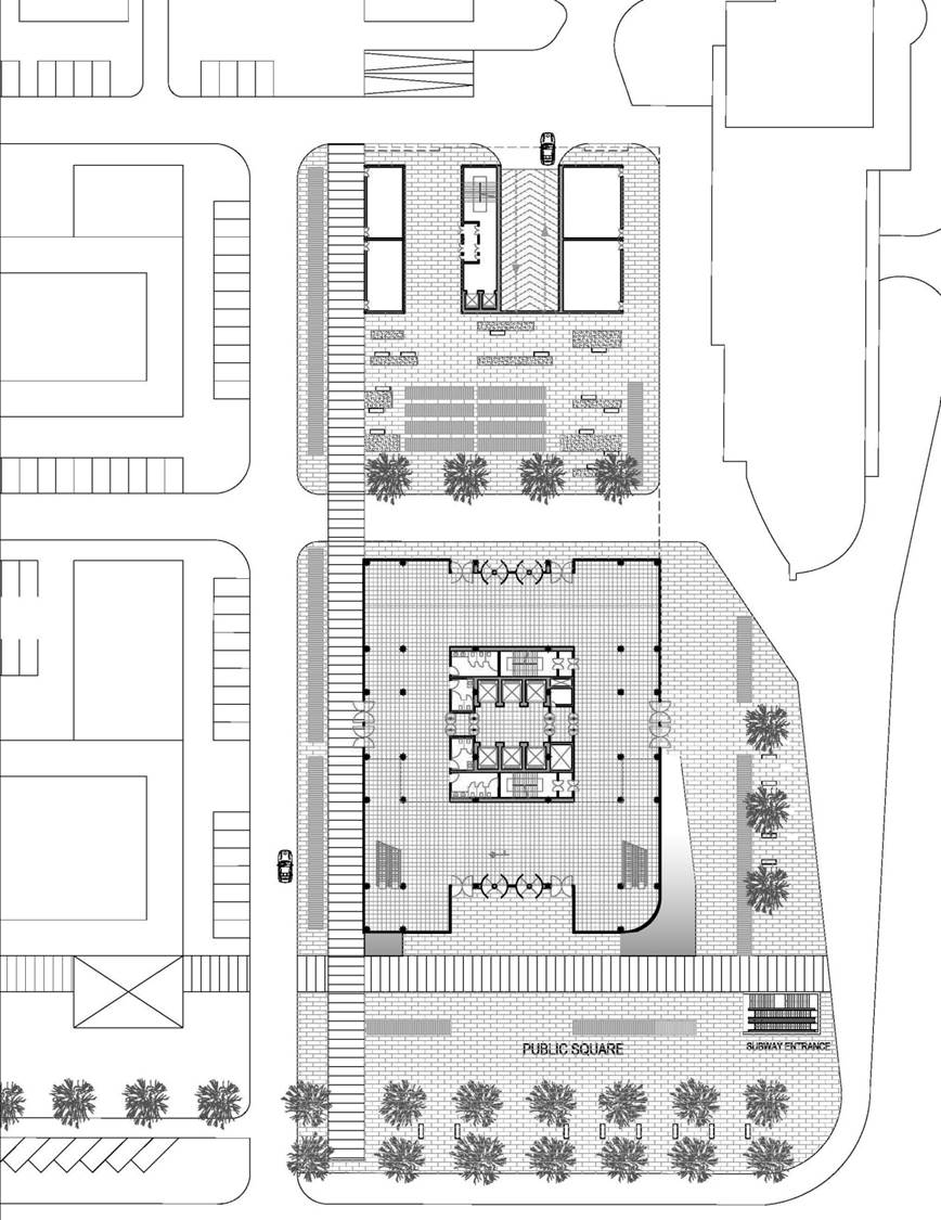
Progetto Torre per Uffici

L'edificio con destinazione residenziale e direzionale, commissionato da un committente privato è ubicato nel centro urbano di Bucarest (Romania). La struttura portante in acciaio antisismica, la facciata continua, l'impiantistica avanzata e l'utilizzo di materiali a basso impatto ambientale sono gli elementi che lo classificano come edificio eco-sostenibile.

Categorie:
Estero
Commerciale e direzionale;
Incarico Progetto: Progetto Preliminare;
Luogo: Bucarest
Cliente: Privato
Committente: Taddei spa
Importo: € 0
Timeline:

2011

Ubicazione:Bucarest - Romania
Intervento: Restauro

Sfoglia la gallery